Амстердамский сахарный завод получает сладкий современный макияж

Амстердамский сахарный завод получает сладкий современный макияж
Амстердамский сахарный завод получает сладкий современный макияж

Блумграхт Лофт была разработана на основе Амстердама Стандартная студия как место для отдыха и расслабления. Когда-то промышленное пространство, бывший сахарный завод, превратилось в гладкий и современный дом на очаровательном канале Амстердама, чтобы соответствовать живым предпочтениям молодого биржевого маклера.

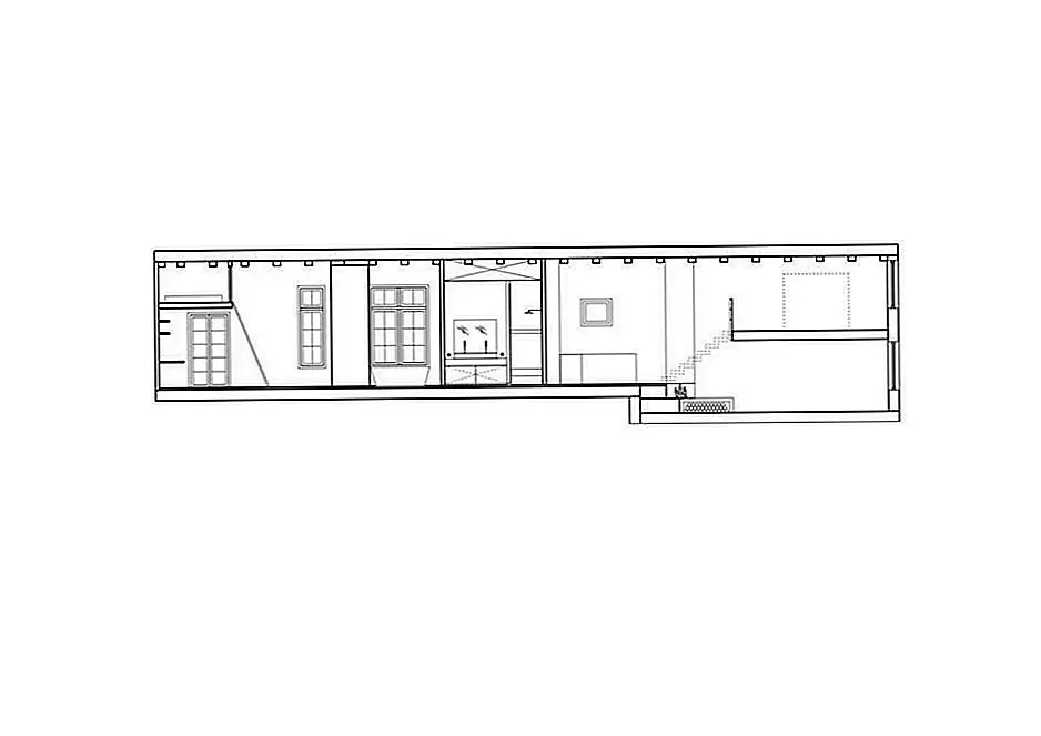
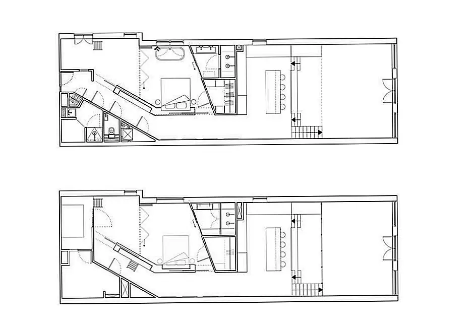
Архитекторы, Wouter Slot и Jurjen van Hulzen, представляли себе дом, пригодный для жизни в городе. Они превратили крошечные комнаты, покрытые гипсокартоном, в здании, которое датируется 1752 годом, в современный чердак площадью 1814 кв. Футов с открытым этажем.

С видом на Блумграхт (что означает «цветочный канал»), перед домом есть гостиная. На раздельном уровне бар и обеденная зона были спроектированы для подключения к остальной части мансарды. Просторная кухня с мраморными столешницами и высококачественной техникой позволяет легко развлекать.

Архитекторы сохранили несколько оригинальных элементов, включая деревянные балки. Контрастные особенности создают теплый эклектизм: бетон, матовый дуб и незавершенная горячекатаная сталь были объединены с индивидуальной мебелью, чтобы сформировать гостеприимный дизайн интерьера.

На задней стене кухни скрывается гардеробная и ванная комната с двумя ливнями. Другой многофункциональный блок укрывает сауну, спа, душ и туалет.

По словам архитекторов, «оставшееся пространство - это спальня, офис и зона для купания с отдельно стоящей ванной. Многофункциональная «большая черная книга» хранит библиотеку, кровать и искусство ». Эта на заказ деталь может быть закрыта благодаря скрытым раздвижным дверям. [Фотографии любезно предоставлены стандартной студией]