Massive Weekend Retreat Balancing Современность и уют: Casa ALD

Massive Weekend Retreat Balancing Современность и уют: Casa ALD
Massive Weekend Retreat Balancing Современность и уют: Casa ALD

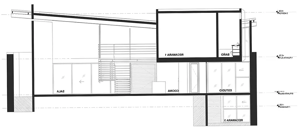
Этот уик-энд, разработанный и Хуан Карлос Баумгартнер из Архитекторы SPACE проецируется на землю площадью чуть более 1000 квадратных метров в Куэрнаваке, Морелос, Мексика. Casa ALD состоит из двух основных томов: призмы, в которую встроена другая прямоугольная деревянная призма. С самого начала цель этого проекта была ясна: создать дом, в котором был достигнут баланс между современностью и уютом. Поэтому архитекторы предпочли использовать несколько материалов для быстрого считывания томов.

Первая призма состоит из черной металлической структуры, которая заканчивается бетонным штапелем. Два фронта этого объема сделаны из стекла, что помогает создать прозрачность для внутренней области и дает ощущение постоянного контакта с природой. Второй том представляет собой консольный деревянный куб, под которым образуется терраса. Требования к дизайну этого проекта включали бассейн, а архитекторы выполняли их, создавая один и покрывая его черными венецианскими стеклянными плитами. Таким образом, бассейн превратился в зеркало с водой, которое отражает дом. Для этого проекта развивающаяся команда решила интегрировать искусство в архитектуру, чтобы выбранные работы стали частью дизайна вместо того, чтобы функционировать как просто декоративные предметы: «С учетом этого принципа мы заказали гиперреалистичную картину размером 2 х 6 м Porsche 78; который был помещен в пространство с двойной высотой. В дополнение к картине Хуан Карлос Баумгартнер спроектировал роспись, которая работает как визуальный конец плавательного бассейна, так и в вестибюле входа в дом ».

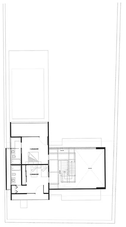
В доме четыре спальни, гостиная с двуспальной кроватью и кухня открытого плана, встроенная в помещение. В гостиной висит современная литая стеклянная люстра. Используя несколько, но тщательно отобранных материалов, мы создали восхитительные области, которые отвечали ожиданиям наших клиентов. Устойчивые конструктивные особенности для Casa ALD включают использование материалов с переработанным материалом с низким содержанием ЛОС и древесины из сертифицированных лесов. Кроме того, освещение почти полностью основано на светодиодах. [Фотографии и информация, предоставленные по электронной почте Хуаном Карлосом Баумгартнером Архитектором]

Image
Image