Модульный плавающий дом позволяет вам жить на воде в любом месте

Модульный плавающий дом позволяет вам жить на воде в любом месте
Модульный плавающий дом позволяет вам жить на воде в любом месте

С крошечным домашним движением, более популярным, чем когда-либо, архитекторы придумывают все более творческие способы жить как роскошно, так и устойчиво. Для стольких поисков небольших домов местоположение столь же важно, как и сама обитель.

Вот где португальская инжиниринговая компания пятница увидел возможность создать модульный плавающий дом, находящийся на воде и вне сети. Будь то для отдыха в выходные дни для группы друзей или частной резиденции для пары, Floatwing предлагает уникальный способ жить устойчиво.

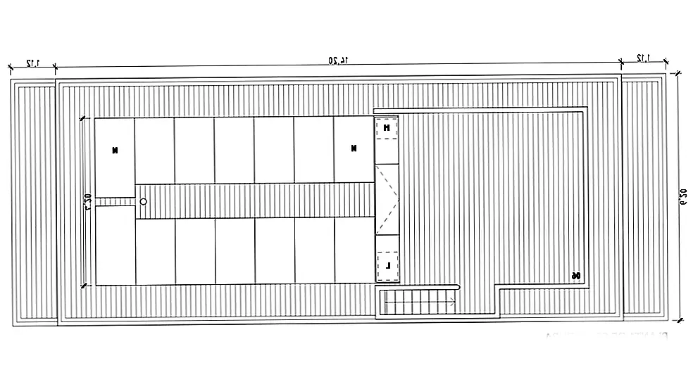
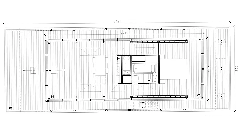
Этот современный плавучий дом построен из экологически чистых материалов и оказывает очень низкое воздействие на окружающую среду. Как и многие крошечные дома, Floatwing широко настраивается. Существует четыре структурные конфигурации, а интерьер обеспечивает множество вариантов компоновки.

Хотя ширина фиксирована на 20 футов, длина внутреннего пространства может составлять от 33 до 59 футов. Он может быть безмоторным и требует буксировки для перемещения из местоположения в местоположение или может включать до двух подвесных двигателей, частично или полностью работающих от солнечной энергии, перемещая дом со скоростью до 3,5 миль / ч.

Сочетая форму и функцию, дизайн имеет больше инноваций, чем кажется на первый взгляд. При полной зарядке дом может отключаться и оставаться самодостаточным в течение как минимум недели, обеспечивая питание как для двигателей, так и для бортовых приборов.

Всего за шесть месяцев он может производить до 100 процентов своего годового спроса на энергию через солнечные и фотогальванические панели. Более того, весь дизайн является модульным, поэтому его можно хранить, транспортировать и строить практически в любом месте.

Фанера, облицованная интерьером, предлагает простоту в скандинавском стиле, которая дополняет спокойную водную среду. Владельцы имеют возможность включить пеллетную печь, которая сжигает биомассу или сжатую древесину, что поощряет круглый год жить в Floatwing.

Окна от пола до потолка в полной мере используют вид и втягиваются, чтобы создать бесшовную жизнь между внутренними и палубными пространствами. Дополнительная крыша находится на крыше.

Floatwing дает людям возможность жить на воде, не ставя под угрозу устойчивость или стиль. Будучи краткосрочным бегством или постоянным домом, это инновационное, мечтательное место. Что вы думаете об этом доме? [Изображения предоставлены в пятницу]

Image
Image
Image
Image