Отличительная и увлекательная квартира путешественника в Москве

Отличительная и увлекательная квартира путешественника в Москве
Отличительная и увлекательная квартира путешественника в Москве
Image
Image

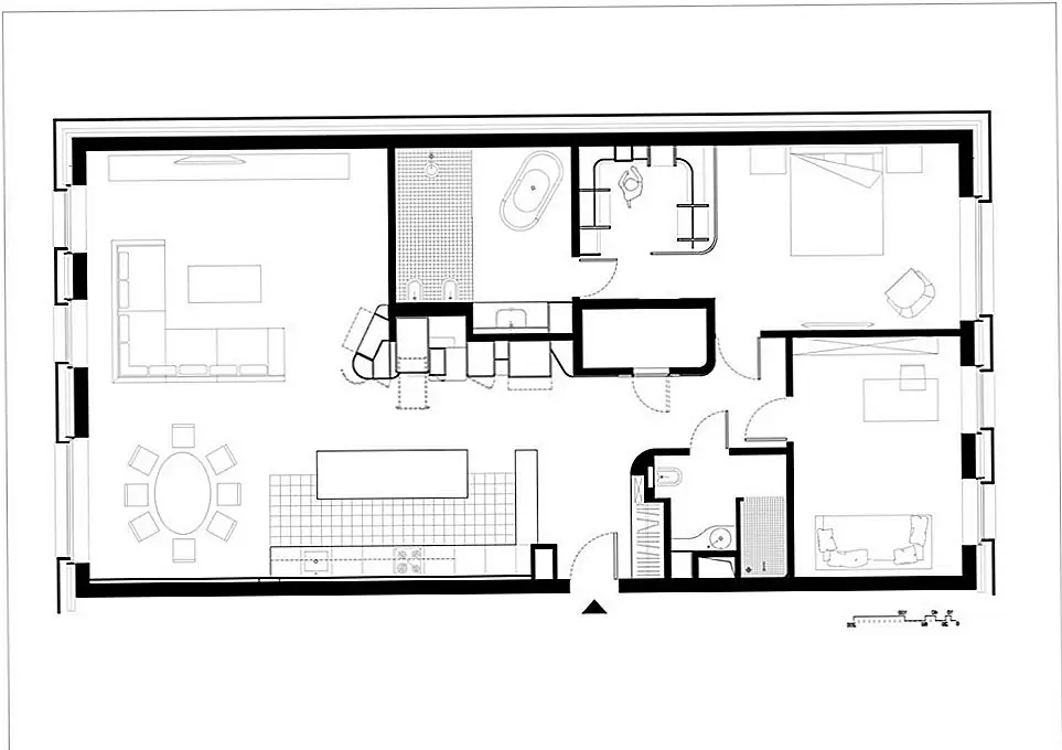
Как вы думаете, что увлекательная квартира путешественника? Французские архитекторы Goodnova-Godiniaux были заказаны землекопом для создания творческого жилища, пригодного для кочевого любовника. Общая площадь 150 квадратных метров, обитель заполнена гениальными дизайнерскими идеями. Для завершения проекта потребовалось почти два года, но результат впечатляет.

В середине прямоугольной планировки квартиры был создан модуль, функционально разделяющий интерьеры: Одетый в единый материал (мутеная древесина), он обеспечивает непрерывность и последовательность, в то время как у комнат, которые тяготеют вокруг, есть свое собственное украшение: ковер из цементной плитки на кухне, мозаика из тартана в душевой, книжная полка в офисе, украшена плитка с воздушными шарами в ванной комнате«. Самой яркой особенностью квартиры является массивная куча чемоданов, обеспечивающая хранение и вдохновляющая на необходимость скорого взлета. Наслаждайтесь фотографиями! [Фото: Каро Аван Дадаев]