Проект гениальной электростанции, представляющий зеленый профиль с неравномерностью в США

Проект гениальной электростанции, представляющий зеленый профиль с неравномерностью в США
Проект гениальной электростанции, представляющий зеленый профиль с неравномерностью в США

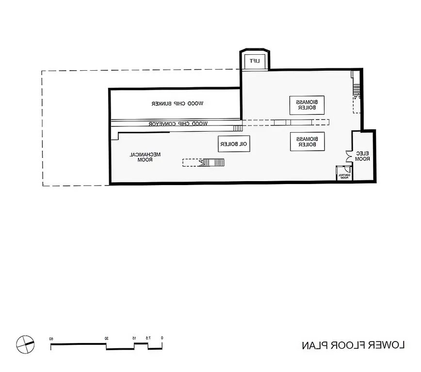
Электростанции - это не самые захватывающие здания в мире. Мы привыкли видеть конкретных гигантов дымоудаления, которые мы обычно характеризуем как загрязняющие. Centerbrook Architects and Planners разработали электростанцию Hotchkiss Biomass, которая имеет 16 500 квадратных футов, что впечатляет своей оригинальной архитектурой и экологически чистыми функциями.

Завод сжигает устойчиво собранную древесную щепу, чтобы нагреть 85 зданий, которые составляют 1,2 миллиона квадратных футов:Международная углеродно-нейтральная нефть, обозначенная Международной группой по изменению климата, является экологически чистым топливом, являющимся побочным продуктом устойчиво управляемых лесов; они заменяют около 150 000 галлонов импортированного мазута в год, сокращая выбросы в целом, наиболее резко двуокись серы более чем на 90 процентов«. Отходы золы собираются для использования в качестве удобрения для соседних огородов.

Электростанция, расположенная в Лейквилле, штат Коннектикут, США, не только высоко оценивает устойчивость, но и эстетику. Его волнистая крыша с образцами местной флоры хорошо интегрирована в наклонный пейзаж, между лесами и водно-болотными угодьями с одной стороны и полем для гольфа - с другой. [Фотографии: Дэвид Сандберг / Эсто]

Завод сжигает устойчиво собранную древесную щепу, чтобы нагреть 85 зданий, которые составляют 1,2 миллиона квадратных футов:Международная углеродно-нейтральная нефть, обозначенная Международной группой по изменению климата, является экологически чистым топливом, являющимся побочным продуктом устойчиво управляемых лесов; они заменяют около 150 000 галлонов импортированного мазута в год, сокращая выбросы в целом, наиболее резко двуокись серы более чем на 90 процентов«. Отходы золы собираются для использования в качестве удобрения для соседних огородов.