Смелая архитектура и планирование пространства: Diamond House в Сингапуре

Смелая архитектура и планирование пространства: Diamond House в Сингапуре
Смелая архитектура и планирование пространства: Diamond House в Сингапуре

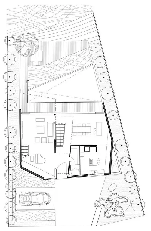
Formwerkz Architects завершили разработку и разработку Diamond House, смелой семейной резиденции, расположенной вдоль Cove Drive в Сентосе, Сингапур. По словам архитекторов, необычная геометрия проекта происходит от «переговоров с параметрами планирования, наложенными на окрестности, и стремлением упростить форму здания. Передние и боковые фасады укладываются в стратегическое положение, чтобы обеспечить оптимальный дневной свет с минимальным компромиссом в уединении. Скошенные стены в углах позволяют уменьшить площадь при расширении пространственного объема на верхних уровнях ». Основным материалом, используемым в процессе строительства, были железная древесина, дуб и травертин.

Уважая потребность жителей в уединении, Diamond House приобрел многогранную форму, скрывая большинство интерьеров, расположенных в непосредственной близости от улицы и соседних домов. Внушительные номера открываются к бассейну, искусственному озеру и садам. Любые мысли об этом необычном архитектурном подходе?