Современный камень в Болгарии

Современный камень в Болгарии
Современный камень в Болгарии

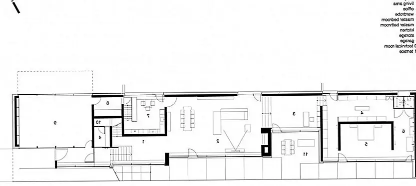
Расположенная в Тарговиште, Болгария, Длинный дом с небольшим уклоном это современная резиденция, предусмотренная архитекторами ввода-вывода как массивный горизонтальный объем. По словам разработчиков проекта, топография сайта напоминает пещеру античного театра: Длинная структура сталкивается с благоприятной ориентацией солнца и видом с небольшим сопротивлением склона. Таким образом, по диагонали в дом высота пространств изменяется в зависимости от степени их конфиденциальности. В противоположном направлении и помимо основной прогрессии находятся комнаты для гостей на сжатом пространстве входа и гаража. Нетрадиционная геометрия проекта ведет глаз по диагональным линиям, создавая забавный и удивительный эффект.

Slight Slope Long House вмещает в себя жилые и обеденные зоны большого размера, три спальни, домашний офис и гараж на три машины: «Внутренняя структура соответствует дополняющему пространству лестничной веранды, обращенной к парку, а также к террасам за домом.

Монолитность облицованных камнем фасадов и негабаритных архитектурных элементов, с одной стороны и перспективных поправок передней возвышенности от другой, неоднозначно меняет масштаб крупной структуры », - объяснили архитекторы. Устойчивые особенности проекта включают пассивное затенение солнца, тепловой насос с заземленным теплообменником и использование местного камня. [Фотографии предоставлены архитектором ввода / вывода]