Удивительный дом моста в Таиланде, в котором есть семья с двумя поколениями

Удивительный дом моста в Таиланде, в котором есть семья с двумя поколениями
Удивительный дом моста в Таиланде, в котором есть семья с двумя поколениями

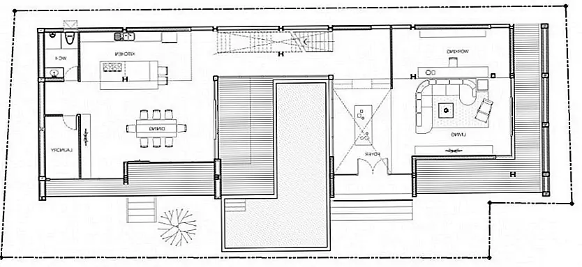
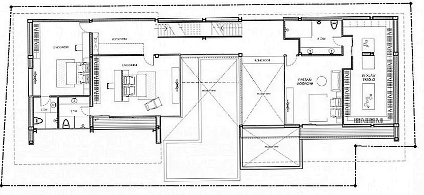
Архитектор и дизайн Junsekino завершила разработку Дом моста, современный семейный дом в Бангкоке, Таиланд. Это нетрадиционное место жительства было идеальным решением для семьи из двух поколений, чтобы жить коллективно, но все еще наслаждаться своим личным пространством. Используя сталь вместе с деревом, архитекторы создали интересный контраст грубой и мягкой. Намерение архитектора состояло в том, чтобы построить самый тонкий и легкий дом, чтобы противостоять идее бывшего здания на участке, напоминающего компактную белую коробку.

По словам разработчиков проекта, дом делится на две части; гостиной и столовой с мостом между ними, расположенными на первом уровне: «Эти две части дома соединены бассейном. Этот развлекательный элемент выступает в качестве социального места для проведения проекта; кроме того, он также служит отражателем для естественного света и освещает дом в дневное время. Плавательный бассейн в центре можно увидеть из каждой комнаты дома ». Резиденция планировалась на двух этажах, чтобы облегчить расширение семьи в будущем. [Фото: Spaceshift Studio]