Устойчивый жилой проект в Калифорнии: дом Стинсона Бич

Устойчивый жилой проект в Калифорнии: дом Стинсона Бич
Устойчивый жилой проект в Калифорнии: дом Стинсона Бич

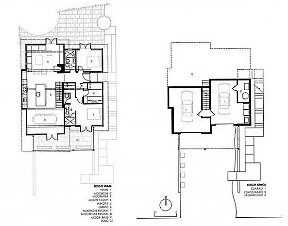
Дом Стинсона Бич это современная резиденция, спроектированная студией в Беркли Дизайн WA и находится на пляже Стинсон, штат Калифорния, США. Участок связан с океаном на западе и соседним с другим домом на востоке. При разработке этого проекта архитекторам не хватало проблем:Мы были строго ограничены как бюджетными, так и зонирующими правилами до дома площадью 1400 квадратных футов. Пространство было на высоте. Разрабатывая план дома вокруг большой комнаты, мы смогли создать привлекательную и большую среду для всех видов деятельности расширенной семьи и друзей. Спальни были оштукатурены под кровать и еще немного. Массирование, появившееся в процессе проектирования, было возвышенной наклонной к югу крышей с обширными окнами, которые открывали доступ к возвышенностям выше. Гофрированный гальвалюмский металл, в паре с сайдингом из цементной плитки, создал прочную и экономичную внешнюю оболочку для дома«. Устойчивые особенности этого места жительства включают изоляцию из вспененной изоляции, бетонные полы, естественную вентиляцию и переработанные материалы.