Вдохновляющий визуальный разрыв между старым и новым: расширение Hawthorn в Мельбурне

Вдохновляющий визуальный разрыв между старым и новым: расширение Hawthorn в Мельбурне
Вдохновляющий визуальный разрыв между старым и новым: расширение Hawthorn в Мельбурне

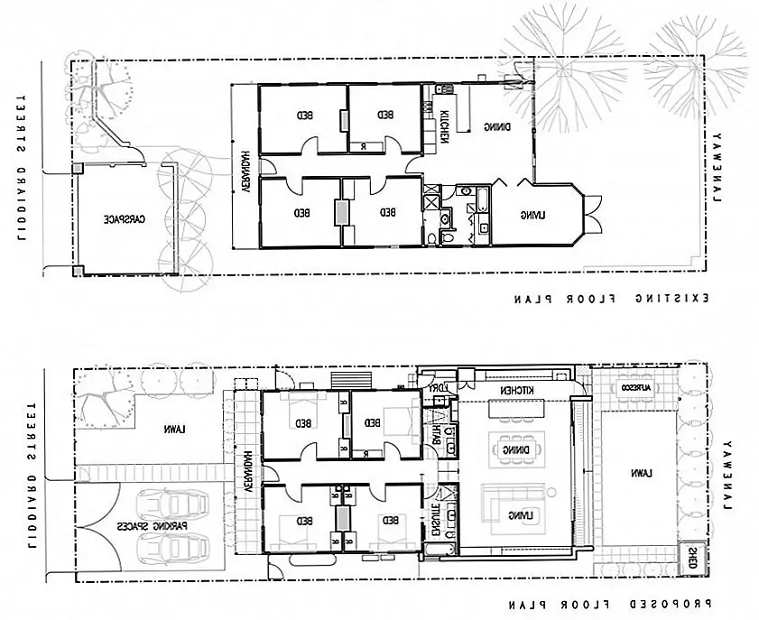
Архитектура Чан завершил Расширение Hawthorn, проект, состоящий из заднего дополнения к двухэтажной викторианской террасе дома в Мельбурн, Австралия. По словам разработчиков проекта, главной задачей было To спроектировать новый семейный район, не жертвуя слишком большим количеством заднего двора, в то же время уважая существующий дом. Подход состоял в том, чтобы создать визуальный разрыв между старым и новым, чтобы четко разграничить различные зоны ». Джакузи и бассейн дополняют современную атмосферу новым расширением, предлагая успокаивающие пространства для семейного общения.

Благодаря четким линиям, обширному использованию окон и высоким потолкам, новое дополнение отвечает современным потребностям владельцев, не мешая традиционной личности главного викторианского строительства: «В существующем доме есть четыре спальни хорошего размера спереди, но жилые, обеденные и кухонные комнаты были небольшими с низкими потолками. Поэтому было предложено снести существующий задний дом и построить новую, современную, открытую планируемую кухню / гостиную / столовую с новой прачечной, двумя ванными комнатами и новой спальней ». Наслаждайтесь виртуальным туром по объекту и позвольте нам знай, что ты думаешь! [Фотографии сфальсифицированной фотографией птиц - Брендан Финн]