Вилла Mecklin, удивительная архитектура в скалистом ландшафте

Вилла Mecklin, удивительная архитектура в скалистом ландшафте
Вилла Mecklin, удивительная архитектура в скалистом ландшафте

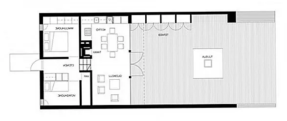
Вилла Mecklin была спроектирована архитекторами Хаттунен-Липасти-Пакканен и расположена в Наантали, Финляндия. Его оригинальная архитектура привлекла наше внимание, и мы с нетерпением ждем ваших впечатлений. Каменистая строительная площадка прекрасна и сложна, но, по-видимому, строительный процесс вовсе не был отрицательно сказывается на местности. Фактически, после хорошего исследования все работало в соответствии с планом. Нам особенно нравится деревянная платформа, которая может использоваться многими творческими и практическими способами. Вот информация от архитекторов:Главное здание сидит в маленькой депрессии в скале, ее защищенная терраса простирается над вершиной скалы. Один прибывает из гавани к входу в главный дом, прикрытый деревьями. После спуска нескольких ступеней разворачивается обширный ландшафт западного берега с его длинными перспективами. Камин был погружен в центр большой террасы, доступ через люк на террасе. Когда огонь не горит, а люк на месте, можно использовать всю террасу, например, танцпол. В связи с сауной береговой линии для гостей также есть камин с подогревом.

Image
Image