Выдающийся семейный домашний дизайн, скрывающийся в пригородах

Выдающийся семейный домашний дизайн, скрывающийся в пригородах
Выдающийся семейный домашний дизайн, скрывающийся в пригородах

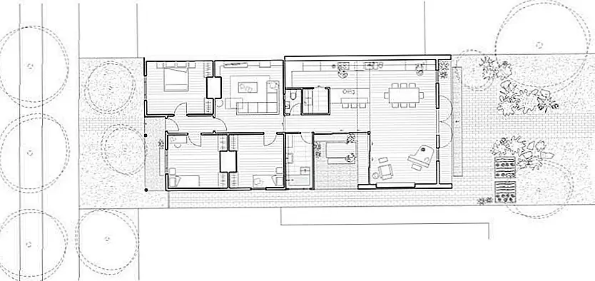
Дом M от Архитектуры MAKE был переименован на южную сторону в Northcote, Мельбурн, как имеющую современное дополнение к существующему семейному дому. С очаровательным, восхитительным дополнением, этот недавно разработанный семейный дом разворачивает свой прежний стесненный характер в обновленной форме. Для того, чтобы семья наслаждалась успокаивающей семейной жизнью, дизайнерам было предложено внести теплую семейную атмосферу в старый и довольно темный дом. Привлекая северный свет в эти новые жилые помещения, добавленные на задний двор, MAKE Architecture расширили жизнь на открытом воздухе.

С его оберткой вокруг скамейки, внутренний двор становится продолжением жилого пространства, позволяя семейной жизни и деятельности разливаться снаружи, когда требуется дополнительное пространство.

Показывая линию крыши, похожую на букву «М», также дающую название дома, дом, сфотографированный архитектурным фотографом Питером Беннеттом, может похвастаться расширенным функциональным пространством, в котором семья может провести качественное время вместе. «Форма крыши «М» выражается внутри, чтобы создать широкие потолочные высоты с облицовочными плитами, обтекающими стены.”

Новое жилое пространство предоставило этой семье светлое пространство, чтобы собраться вместе и поделиться повседневной жизнью. В кухне есть место для домашнего администратора, а пианино, которое не использовалось в старой запасной комнате, теперь находится в главном жилом помещении и регулярно воспроизводится. Затопленная ванна в хорошо спланированной ванной комнате и плитки ручной работы от MAKE's Bruce Rowe - это небольшие моменты наслаждения.”