Современное семейное отступление с изогнутым верхним уровнем: Дом Ревнице

Современное семейное отступление с изогнутым верхним уровнем: Дом Ревнице
Современное семейное отступление с изогнутым верхним уровнем: Дом Ревнице

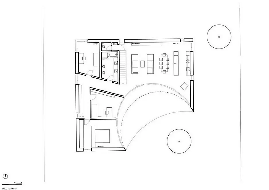
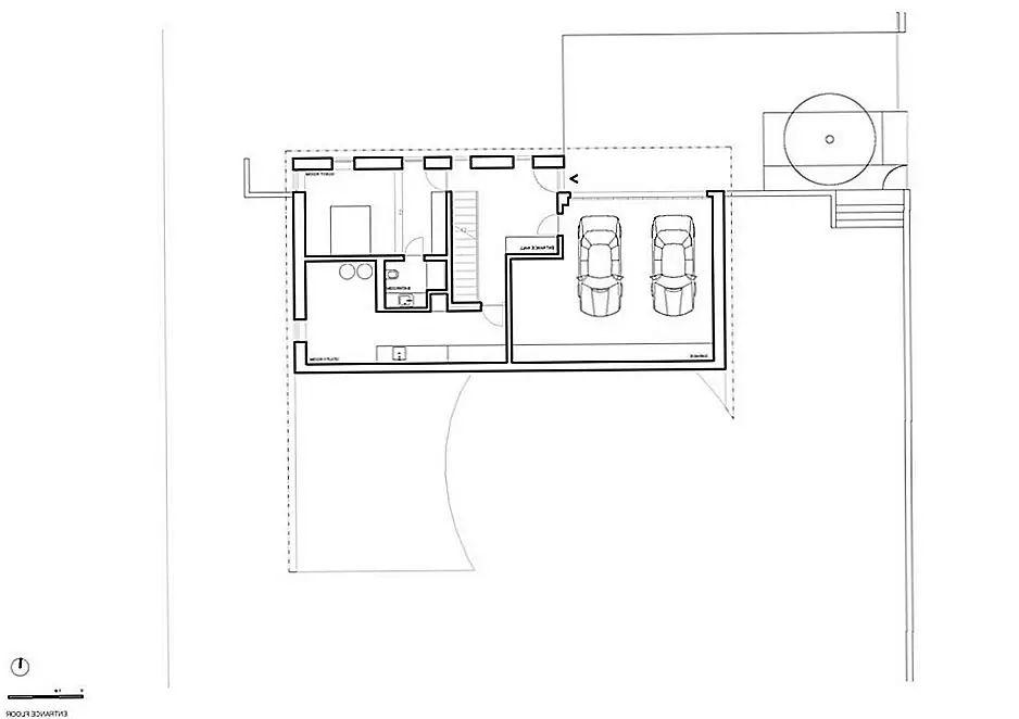
Расположенный в жилом районе вилл на северном берегу Ревнице над долиной Бероунка в Чешской Республике, Дом Ревнице это современный семейный отдых, предлагающий здоровый образ жизни. Место жительства, предусмотренное Jarousek.Rochová.Architekti- состоит из более низкого уровня, встроенного в зеленый сад, и верхнего объема, который кажется независимым от определенной точки обзора. По соображениям конфиденциальности уличный фасад относительно закрыт, а южная часть дома открывается в зелени сада и использует уютную террасу.

По словам архитекторов, резиденция строится следующим образом: «Живая секция состоит из основного жилого помещения, столовой и кухни с выходами на террасу. Эта жилая площадь использует по всей своей длине прозрачную кривизну южного фасада, с постоянным контактом с садом и самим домом. На северо-востоке от здания открывается прекрасный вид и секция с постоянной кривизной, ориентированной на внутренний дворик. Именно здесь расположены спальни и прихожая с гардеробной ». Наслаждайтесь виртуальным туром! [Фотография: Филипп Шляпл]