Тщательно подготовленное домашнее расширение в Сиднее от архитектора Кристофера Полли

Тщательно подготовленное домашнее расширение в Сиднее от архитектора Кристофера Полли
Тщательно подготовленное домашнее расширение в Сиднее от архитектора Кристофера Полли

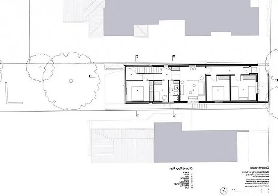
Дом Cosgriff в Сиднее, Австралия, был задуман архитектором Кристофером Полли как современное жилище, сохраняя его оригинальный конверт. Недавно добавленное расширение открывает резиденцию в саду, добавляя больше жизненного пространства и более естественного света. Здание выше, чем существующие выравнивания стен, третий уровень был создан сверху, предлагая великолепные взгляды на восток.

Хорошо спланированная структура расширения обеспечивает легкий доступ к новым интерьерам и практичный общий дизайн:Коммунальные службы, расположенные глубоко внутри полуподземного тыла нижней части земли, обеспечивают прямое подключение жилого пространства к саду и дереву дьякаранды, а переработанный первый этаж над ним добавляет ванную, главную спальню и удобную спальню, обеспечивающую гибкость для будущего использования, изучение«. Сводчатые потолки и световые люки обеспечивают естественный свет внутри, благодаря чему каждая комната чувствует себя приветливой и усиливает особые цветовые контрасты. Как бы вы лично прокомментировали это современное дополнение к Сиднее?